Skip to content
Search for:
Home
Manufacturing Capabilities
Our Work
Panel & Column Specs
Contact
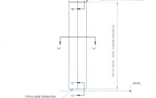
Column Cover Details
Mantech-All Fab
:
Home
>
Metal Panel Standard Details
>
Column Cover Specs
>
Column Cover Details
Previous
Column Cover Details
Webmaster
2017-04-28T15:52:12-05:00
Project Description
Related